From home office to guest room in seconds.
Our editors and experts handpick every product we feature. We may earn a commission from your purchases.Learn more.
 
	 
	From home office to guest room in seconds.
Our editors and experts handpick every product we feature. We may earn a commission from your purchases.Learn more.
 Time
Time Multiple Days
 Complexity
ComplexityIntermediate
 Cost
Cost$501-1000
If you’re tight on living space or you want your guest room to double as an office, here’s a piece of furniture you’ll want to check out. This bed quickly converts to a desk without increasing its footprint. When you switch it back to a bed, the desk stays level, so you can leave all your stuff on it!
For this project, I used maple lumber and plywood from a specialty lumberyard and finished it later with a couple coats of polyurethane. You could save money buying materials from a home center, but the quality won’t be as good.
A company called Hiddenbed sells bed kits with all the parts precut and ready for assembly. You can also purchase just the hardware kit, which includes the plans, and that’s the option shown here. Building the bed yourself instead of buying the precut kit can save you about $1,200! To make this furniture even more user-friendly, I added a strip of LED lights and attached cork boards to the bed’s underside.
The hardware for a twin bed costs about $300 at hiddenbedusa.com. There are also versions for double and queen-size beds. All of the other hardware, fasteners and supplies are available at home centers.
Tip: The hardware kit includes everything needed for the folding mechanism, but not the fasteners used to assemble the bed/desk. The company offers a fastener kit, which I ordered. But, the fasteners in the kit are large-diameter screws with heads that show after assembly. I wanted a cleaner look, so I used glue and trim-head screws instead.
Check out the Murphy Bed in action:

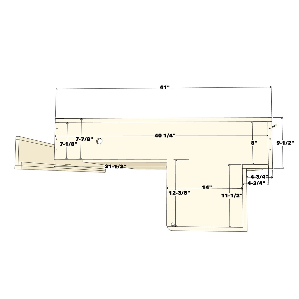
Dimensions for Part A:

Dimensions for Part G:



Most of the parts of this project are simple plywood rectangles. But the sides and bed ends have inside corners, requiring stopped cuts. To make these cuts, mark out the cutting lines on plywood. Cut close to the corners using a circular saw with a cutting guide. Finish the cuts with a handsaw, then smooth the cuts with a file or sanding block.

Cut all the edging about 1/16 in. wider than the thickness of the parts being covered*, so it’ll just barely overhang both faces. Apply the edging to all parts before assembly using glue and finish nails.
*Plywood and lumber thicknesses vary slightly, so standard 1-by lumber may not cover the edge of 3/4-in. plywood.

When the glue is dry, sand the edging flush with the plywood faces. To avoid sanding through the plywood’s veneer, scribble a pencil line down the joint. Stop and check your progress frequently.

The sides, bed ends and desk ends require accurately placed holes and recesses for hardware. The original plans for this bed were in metric, and because the hardware hole locations are critical, we recommend using a metric tape measure. I also recommend using Forstner bits because their guide points make it much easier to center holes precisely.
If this project is a little too complicated for you, check out these six woodworking projects you can make with just a jigsaw.

Prop up the sides on their back edges, then fasten the top to them with glue and trim-head screws. Attach the back shelves and bottom stretcher the same way. Because of the applied edging, you’ll often be driving screws through solid lumber. Trim-head screws are self drilling, but don’t risk it. Drill clearance holes first. Glue and nail the locking pin blocks in place.

The edging on the front of the carcass is wider to hide the hardware. Apply this edging using glue and finish nails. When the glue is dry, sand the edging flush with the outer faces. Fill nail and screw holes with wood putty, sand the whole carcass to 180-grit, then apply a finish of your choice.

Glue and screw the desk back and ends to the desk platform. Drill and countersink screw holes in the angle iron desk stiffener. Flip the desk over and attach the stiffener to the underside using 3/4-in. wood screws.
See 56 brilliant woodworking tips from our readers and editors.

Cut and sand the radiused corners of the bed ends, and then attach the front and back rails to the ends. Glue and screw the platform cleats to the rails, and then screw the platform to the cleats. The plans don’t call for cleats on the bed ends to help support the platform, but I installed some anyway. Instead of attaching these to the underside, where they would show, I attached them above the platform, and then screwed the platform to them.

Fasten the “tribearers” to the desk ends with No. 8 x 3/4-in. flat-head screws. Attach the link pivot to the desk ends using the provided threaded pivot rods and screws. Make sure you orient the plates correctly. I put them on wrong the first time. Thinking the holes were mismeasured, I drilled new ones. Eventually, I found my mistake and had to make new ends!

Press the plastic bushings into the holes in the bed ends, and then insert the pivot rods.

Attach the pivot arm plate and spring bracket using hex-head bolts and flat hex-drive cap nuts. I was tempted to use screws for this so no hardware would show on the exterior. Because of the torque applied to these parts, however, I decided through-bolts were a better choice. You could use carriage bolts, but the cap nuts ($10 for a 12-pack online) give a tidy, finished look. Lastly, insert the locking pin bushings in their holes.

Set the desk on the floor. With a helper, slide the bed ends into place in the pivot links on the desk. Install the pivot rod, securing the bed and desk together.

Insert the bushings and trunnions into their holes in the bed ends, and then slide the bed/desk assembly into the carcass. Line up the trunnion screws with the threaded holes in the pivot arm plates and thread them in. Hook the pivot arms under the tribearers.

Insert the locking pins into their holes in the desk ends, and then mark the pin locations in the locking pin blocks. Drill the locking pin holes in the blocks, then fasten the locking pins in place using the provided screws.

To keep the mattress from tipping against the narrow shelves when you fold up the bed, secure it with elastic straps at the corners. Attach the straps to the bed platform with wood screws and flat washers.

The LED strip light is optional, but it’s a nice feature. It’s adhesive-backed, so you just stick it into place, plug it in and set up the app on your phone.

An LED strip light is perfect for reading in bed, or just to have fun changing colors and creating a mood. This 78-in. strip light from LIFX costs $90.
